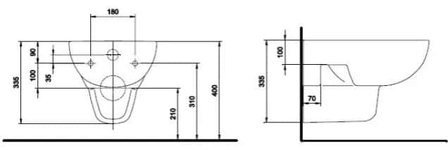
Optymalna wysokość miski WC od podłogi jest kluczowym aspektem, który wpływa na komfort i bezpieczeństwo użytkowników. Wysokość toalety powinna być dostosowana do potrzeb różnych grup, takich jak dorośli, osoby starsze, dzieci oraz osoby z niepełnosprawnościami. Standardowa wysokość, uznawana za najbardziej komfortową dla dorosłych, wynosi 40–43 cm, podczas gdy dla seniorów i osób z ograniczeniami ruchowymi zaleca się wysokość 45–48 cm.
W przypadku dzieci, optymalna wysokość miski WC wynosi 35–40 cm, a dla osób bardzo wysokich można zastosować toalety podwieszane na wysokości 700–800 mm. Warto również rozważyć toalety z regulowaną wysokością, które pozwalają na dostosowanie do indywidualnych potrzeb użytkowników, co zwiększa ich komfort i bezpieczeństwo.
Najważniejsze informacje:
- Standardowa wysokość miski WC dla dorosłych wynosi 40–43 cm.
- Dla osób starszych i z ograniczeniami ruchowymi zaleca się wysokość 45–48 cm.
- Optymalna wysokość toalety dla dzieci to 35–40 cm, z modelami dedykowanymi o wysokości 30–35 cm.
- Dla osób korzystających z wózków inwalidzkich idealna wysokość to 48–50 cm.
- Toalety podwieszane umożliwiają regulację wysokości montażu, co zwiększa ich funkcjonalność.
Wysokość miski WC od podłogi dla dorosłych użytkowników dla komfortu
Wysokość miski WC od podłogi ma kluczowe znaczenie dla komfortu i ergonomii użytkowników. Standardowa wysokość, uznawana za najbardziej odpowiednią dla dorosłych, wynosi 40–43 cm. Ta wysokość zapewnia naturalną pozycję ciała podczas korzystania z toalety, co wpływa na komfort i wygodę. Warto zauważyć, że dla osób o wyższym wzroście, zalecana może być nieco wyższa miska, np. 48 cm, co również sprzyja lepszemu samopoczuciu.
Odpowiednia wysokość toalety ma również wpływ na zdrowie użytkowników. Zbyt niska lub zbyt wysoka miska WC może powodować dyskomfort, a w dłuższym okresie prowadzić do problemów zdrowotnych, takich jak bóle pleców czy stawów. Dlatego tak ważne jest, aby dostosować wysokość toalety do indywidualnych potrzeb użytkowników, co pozwala na łatwiejsze korzystanie z toalety i zmniejsza ryzyko urazów.
Standardowa wysokość miski WC dla dorosłych dla wygody
Typowa wysokość miski WC dla dorosłych wynosi 40–43 cm. Taki zakres wysokości jest uznawany za złoty środek, który zapewnia komfort podczas korzystania z toalety. Wysokość ta umożliwia łatwe wstawanie i siadanie, co jest istotne dla codziennego użytkowania. Dostosowanie toalety do standardowych wysokości wpływa na ogólną satysfakcję z korzystania z łazienki.
Wpływ wysokości toalety na zdrowie i komfort użytkowników
Wysokość toalety ma znaczący wpływ na zdrowie i komfort użytkowników. Niewłaściwie dobrana wysokość może prowadzić do problemów zdrowotnych, takich jak bóle pleców, kolan czy stawów. Użytkownicy mogą odczuwać dyskomfort podczas korzystania z toalety, co z czasem może skutkować poważniejszymi dolegliwościami. Dlatego tak ważne jest, aby miska WC była dostosowana do indywidualnych potrzeb i preferencji użytkowników.
Optymalna wysokość miski WC dla osób starszych dla lepszego bezpieczeństwa
W przypadku osób starszych, optymalna wysokość miski WC jest kluczowa dla zapewnienia bezpieczeństwa i wygody podczas korzystania z toalety. Zalecana wysokość dla seniorów wynosi 45–48 cm, co ułatwia wstawanie i siadanie. Tego rodzaju wysokość zmniejsza obciążenie stawów i mięśni, co jest szczególnie ważne dla osób z ograniczeniami ruchowymi. Odpowiednia wysokość toalety przyczynia się do zwiększenia komfortu i bezpieczeństwa użytkowników.
Warto również zauważyć, że toalety o odpowiedniej wysokości mogą znacząco wpłynąć na jakość życia seniorów. Umożliwiają one łatwiejsze korzystanie z toalety, co zmniejsza ryzyko upadków i kontuzji. Wybór toalety dostosowanej do potrzeb osób starszych jest zatem nie tylko kwestią komfortu, ale także zdrowia i bezpieczeństwa.
Zalecana wysokość toalety dla seniorów dla łatwiejszego korzystania
Zalecana wysokość toalety dla seniorów wynosi 45–48 cm. Taki zakres wysokości jest dostosowany do potrzeb osób starszych, co ułatwia im korzystanie z toalety. Wysokość ta pozwala na naturalne ułożenie ciała podczas siadania i wstawania, co jest istotne dla ich komfortu i bezpieczeństwa. Dzięki temu seniorzy mogą korzystać z toalety bez obaw o urazy.
Jak wysokość miski WC wpływa na mobilność osób starszych
Wysokość miski WC ma duży wpływ na mobilność osób starszych. Zbyt niska miska może powodować trudności w siadaniu i wstawaniu, co zwiększa ryzyko upadków. Odpowiednia wysokość toalety wspiera niezależność seniorów, umożliwiając im łatwiejsze korzystanie z łazienki. Dostosowanie wysokości toalety do ich potrzeb przekłada się na lepszą jakość życia oraz większą samodzielność w codziennych czynnościach.
Wysokość miski WC dla dzieci dla zapewnienia wygody
W przypadku dzieci, optymalna wysokość miski WC jest kluczowa dla ich komfortu i bezpieczeństwa podczas korzystania z toalety. Zalecana wysokość dla dzieci wynosi 35–40 cm, co pozwala na wygodne siadanie i wstawanie. Istnieją również modele dedykowane dla najmłodszych użytkowników, których wysokość wynosi 30–35 cm. Właściwe dopasowanie wysokości toalety do wzrostu dziecka jest istotne dla ich samodzielności w korzystaniu z łazienki.
Właściwa wysokość miski WC wpływa na pewność siebie dzieci, ponieważ umożliwia im korzystanie z toalety bez pomocy dorosłych. Dzięki odpowiednio dobranym wymiarom, dzieci mogą czuć się komfortowo i bezpiecznie, co zachęca je do korzystania z toalety w sposób samodzielny. Dostosowanie wysokości toalety do ich potrzeb jest kluczowe dla ich rozwoju i komfortu.
Idealna wysokość toalety dla dzieci dla ich komfortu
Idealna wysokość toalety dla dzieci powinna wynosić 35–40 cm, co sprzyja ich wygodzie i samodzielności. Dla najmłodszych istnieją również modele o wysokości 30–35 cm, które są dostosowane do ich potrzeb. Taka wysokość ułatwia dzieciom korzystanie z toalety i zmniejsza ryzyko dyskomfortu podczas siadania oraz wstawania.
Modele misek WC dedykowane dla najmłodszych użytkowników
Na rynku dostępne są różne modele misek WC, które są dedykowane dla dzieci. Przykłady to toalety marki Villeroy & Boch, które oferują miski o wysokości 35 cm, zaprojektowane z myślą o najmłodszych. Innym przykładem jest Roca, której modele mają wysokość 30 cm, idealne dla małych dzieci. Te toalety często mają dodatkowe funkcje, takie jak antybakteryjna powłoka czy kolorowe wzory, które zachęcają dzieci do korzystania z toalety.
| Model | Wysokość (cm) | Cecha szczególna |
| Villeroy & Boch | 35 | Antybakteryjna powłoka |
| Roca | 30 | Kolorowe wzory |
Wysokość miski WC dla osób z niepełnosprawnościami dla większej dostępności
Wysokość miski WC jest niezwykle ważna dla osób z niepełnosprawnościami, ponieważ odpowiednia wysokość toalety znacząco wpływa na ich komfort i dostępność. Zaleca się, aby toalety przeznaczone dla osób z ograniczeniami ruchowymi miały wysokość w zakresie 48–50 cm. Taki wybór wysokości ułatwia przesiadanie się z wózka inwalidzkiego oraz minimalizuje ryzyko upadków. Dzięki temu, osoby z niepełnosprawnościami mogą korzystać z toalety w sposób bardziej samodzielny i bezpieczny.
Oprócz samej wysokości, istotne są również cechy dostępności, takie jak uchwyty montowane przy toalecie, które wspierają użytkowników w procesie siadania i wstawania. Toalety powinny być zaprojektowane w sposób, który umożliwia łatwe ich użytkowanie przez osoby z różnymi rodzajami niepełnosprawności. Właściwe dostosowanie toalety do potrzeb użytkownika może znacząco poprawić jakość życia oraz zwiększyć niezależność.
Optymalne wymiary toalety dla użytkowników wózków inwalidzkich
Optymalne wymiary toalety dla użytkowników wózków inwalidzkich powinny wynosić 48–50 cm od podłogi. Taka wysokość ułatwia przesiadanie się z wózka i jest dostosowana do potrzeb osób z ograniczeniami ruchowymi. Wysokość ta pozwala na wygodne korzystanie z toalety, co jest kluczowe dla zachowania samodzielności. Dobrze dobrana wysokość toalety może również pomóc w zapobieganiu urazom i kontuzjom.
Jak dostosować wysokość miski WC do potrzeb osób z ograniczeniami
Dostosowanie wysokości miski WC do potrzeb osób z ograniczeniami może obejmować różne metody, takie jak montaż podwyższonych misek lub użycie nakładek. Warto również rozważyć instalację uchwytów, które ułatwiają wstawanie i siadanie. Dodatkowo, toalety podwieszane oferują możliwość regulacji wysokości, co pozwala na dostosowanie ich do indywidualnych wymagań użytkowników. Takie rozwiązania zwiększają komfort i bezpieczeństwo korzystania z toalety, co jest szczególnie ważne dla osób z ograniczeniami ruchowymi.

Regulowana wysokość miski WC dla elastyczności i komfortu
Wybór toalety z regulowaną wysokością przynosi wiele korzyści, zwłaszcza dla osób o różnych potrzebach i preferencjach. Takie toalety pozwalają na dostosowanie wysokości miski do indywidualnych wymagań użytkowników, co znacznie zwiększa komfort korzystania. Dzięki regulacji wysokości, można łatwo dostosować toaletę do wzrostu użytkownika, co jest szczególnie przydatne w domach, gdzie korzystają z niej osoby w różnym wieku i z różnymi potrzebami. Toalety z regulowaną wysokością są idealnym rozwiązaniem dla rodzin i osób, które często zmieniają swoje potrzeby.
Oprócz elastyczności, toalety te często wyposażone są w dodatkowe funkcje, takie jak systemy łatwego montażu czy mechanizmy blokujące, które zapewniają stabilność. Wybór toalety z regulowaną wysokością może również przyczynić się do poprawy zdrowia użytkowników, ponieważ odpowiednia wysokość zmniejsza obciążenie stawów i mięśni. Dlatego toalety te stanowią doskonałe rozwiązanie dla osób starszych oraz tych z ograniczeniami ruchowymi.
Korzyści z wyboru toalety z regulowaną wysokością dla różnych użytkowników
Toalety z regulowaną wysokością oferują szereg korzyści, które zaspokajają potrzeby różnych użytkowników. Przede wszystkim, umożliwiają one łatwe dostosowanie do indywidualnych wymagań, co zwiększa komfort korzystania. Dodatkowo, osoby z ograniczeniami ruchowymi mogą korzystać z toalety bez obaw o urazy, ponieważ mogą ustawić ją na wysokości, która jest dla nich najwygodniejsza. Dzięki temu, toalety te wspierają samodzielność i niezależność użytkowników.
Przykłady modeli toalet z możliwością regulacji wysokości
Na rynku dostępne są różne modele toalet z możliwością regulacji wysokości. Przykładem jest toaleta marki Geberit, która oferuje regulację wysokości od 40 do 50 cm, co pozwala na dostosowanie jej do potrzeb użytkowników. Innym modelem jest Roca z systemem regulacji, który umożliwia ustawienie wysokości w zakresie 42–48 cm. Takie toalety często mają dodatkowe funkcje, jak systemy oszczędzania wody oraz łatwe czyszczenie, co czyni je praktycznym wyborem dla każdego domu.| Model | Zakres wysokości (cm) | Cecha szczególna |
| Geberit | 40–50 | Regulacja wysokości |
| Roca | 42–48 | System oszczędzania wody |
Jak technologia zmienia przyszłość regulowanych toalet
W miarę jak technologia rozwija się, regulowane toalety stają się coraz bardziej zaawansowane, oferując funkcje, które mogą znacznie poprawić komfort użytkowania. Nowe modele toalet są teraz często wyposażone w inteligentne systemy, które automatycznie dostosowują wysokość miski w zależności od wzrostu użytkownika lub jego preferencji. Dzięki zastosowaniu czujników, toalety te mogą rozpoznać, kto z nich korzysta, i dostosować wysokość w czasie rzeczywistym, co zwiększa wygodę i bezpieczeństwo korzystania.
Przyszłość regulowanych toalet może również obejmować integrację z aplikacjami mobilnymi, które pozwalają użytkownikom na zdalne sterowanie wysokością miski oraz innymi funkcjami. Takie rozwiązania mogą być szczególnie pomocne dla osób z ograniczeniami ruchowymi, umożliwiając im łatwe dostosowanie toalety do swoich potrzeb bez konieczności wstawania. W miarę jak technologia staje się coraz bardziej dostępna, możemy oczekiwać, że toalety z regulowaną wysokością będą standardem w nowoczesnych domach, zapewniając większą elastyczność i komfort dla wszystkich użytkowników.
